La suite de votre contenu après cette annonce

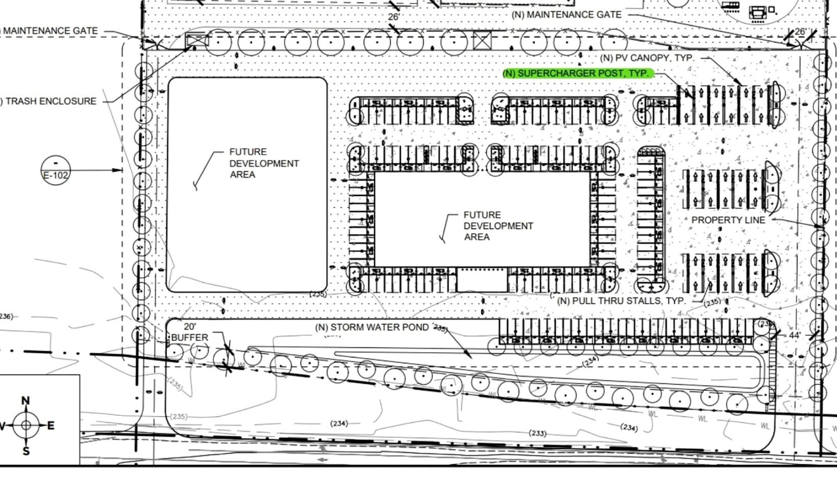
Tesla prévoit de créer la plus grande station de Superchargeurs en Californie, à Kern County. Cette station aura plus de 160 bornes et représentera l’avenir de la recharge de voiture électrique.
Avec l’évolution des stations de recharge, les constructeurs et prestataires veulent en faire de véritables hubs. C’est le cas de Shell, qui en installe depuis deux ans et demi, ou d’Audi, qui a créé ses Charging Hub.
Bien évidemment, Tesla ne veut pas rester en retrait de ses concurrents, et veut même franchir un cap. C’est ce qui devrait arriver, si l’on regarde les plans du futur hub de recharge californien de Kern County.
D’après la demande de permis de construire, cette station comporterait 164 bornes de recharge ! Cela en ferait très nettement la plus grande station Superchargeur au monde. Autre point d’intérêt : les 16 emplacements traversants de la station, ce qui permet donc d’avoir une remorque.
En effet, Tesla veut tester des emplacements sur lesquels les bornes sont latérales. Pour y parvenir, les places sont alignées, mais on y entre d’un côté et l’on en repart de l’autre (à droite sur le plan). Ces bornes sont aussi avantageuses pour les gens tirant une remorque.
La station aura son propre micro-réseau électrique, avec des batteries et des toits en panneaux photovoltaïques. Tesla n’a pas encore annoncé la date d’ouverture de cette infrastructure.

Tesla ouvre sa première station Superchargeur V4 en FranceLe meilleur d'Automobile Propre, dans votre boite mail !
Découvrez nos thématiques voiture électrique, voiture hybride, équipements & services et bien d’autres
S'inscrire gratuitement
Ca représente quand même une sacrée demande de matériaux... Le tout pour une vitrine technologique. Je ne suis pas convaincu du bénéfice "écolo" de la station.
Dommage de tomber sur eux de cette manière qui est, pour moi, contre-productive. Je pense que les VE sont comme toutes choses, non pertinentes dans l'excès. Des VE petits, légers et économes, sans recharges "ultra méga" rapide, ok si c'est pour remplacer des VT qui consomment beaucoup (chose assez commune malheureusement). En tout cas, selon moi, cette station ressemble plus à un excès qu'à de la sobriété.
et c'est dommage pour tout le monde:
Une débilité de plus à mettre au crédit (ou au débit!) de Musk.